Set quietly back from the road, 39A Egmont Street is the kind of home families settle into with ease. Low maintenance brick and tile, plenty of sun, and a private, secure setting just minutes from town, it ticks the practical boxes without losing the homely feel.
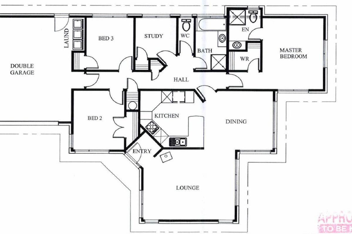
It’s an easy, comfortable layout: a heat pump installed while the open plan kitchen and dining area keep everyone connected. With great storage, a kitchen built for real life … morning chaos, shared meals, weekend baking and ranch sliders make the step out to the patio effortless, perfect for young kids or enjoying a quiet cuppa in the sun.
Three double bedrooms sit privately down the hall, including a generous master with walk-in wardrobe, ensuite and outdoor access. A bonus fourth room that works well as a nursery, home office or young child’s bedroom. The family bathroom offers both bath and shower, and a separate toilet. An internal access garage with laundry space adds for day-to-day convenience and the turnaround bay on the shared drive makes coming and going straightforward.
Outdoors, the 674 sqm section is surprisingly private, well fenced, sunny, and set up for easy living. A couple of garden sheds, a vege patch and a sheltered patio area mean you can potter, entertain or simply relax without hours of maintenance.
It’s tidy, solid and well cared for. In short: a warm, practical family home in a well loved street, offering privacy, sunshine and a location that keeps life simple. A smart move for anyone wanting comfort without the fuss.





















































